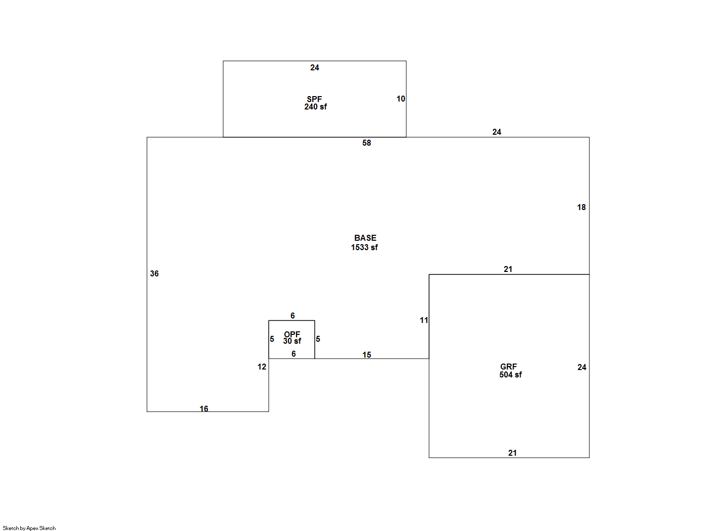
Seminole County Property Appraiser


4696 CREEKVIEW LN OVIEDO, FL 32765
BENECH, JUDITH; WHITTIMORE, JAMIE
2026 Market $418,178 Assessed $414,694 Taxable $363,283
2025 Tax Bill $4,964.66 Tax Savings with Exemptions $920.03

Copyright 2026 © Seminole County Property Appraiser | Privacy Statement | Accessibility/Terms of Use | Translate

Follow us on our socials