Seminole County Property Appraiser


692 FANNING DR WINTER SPRINGS, FL 32708
NEER, SANDRA M
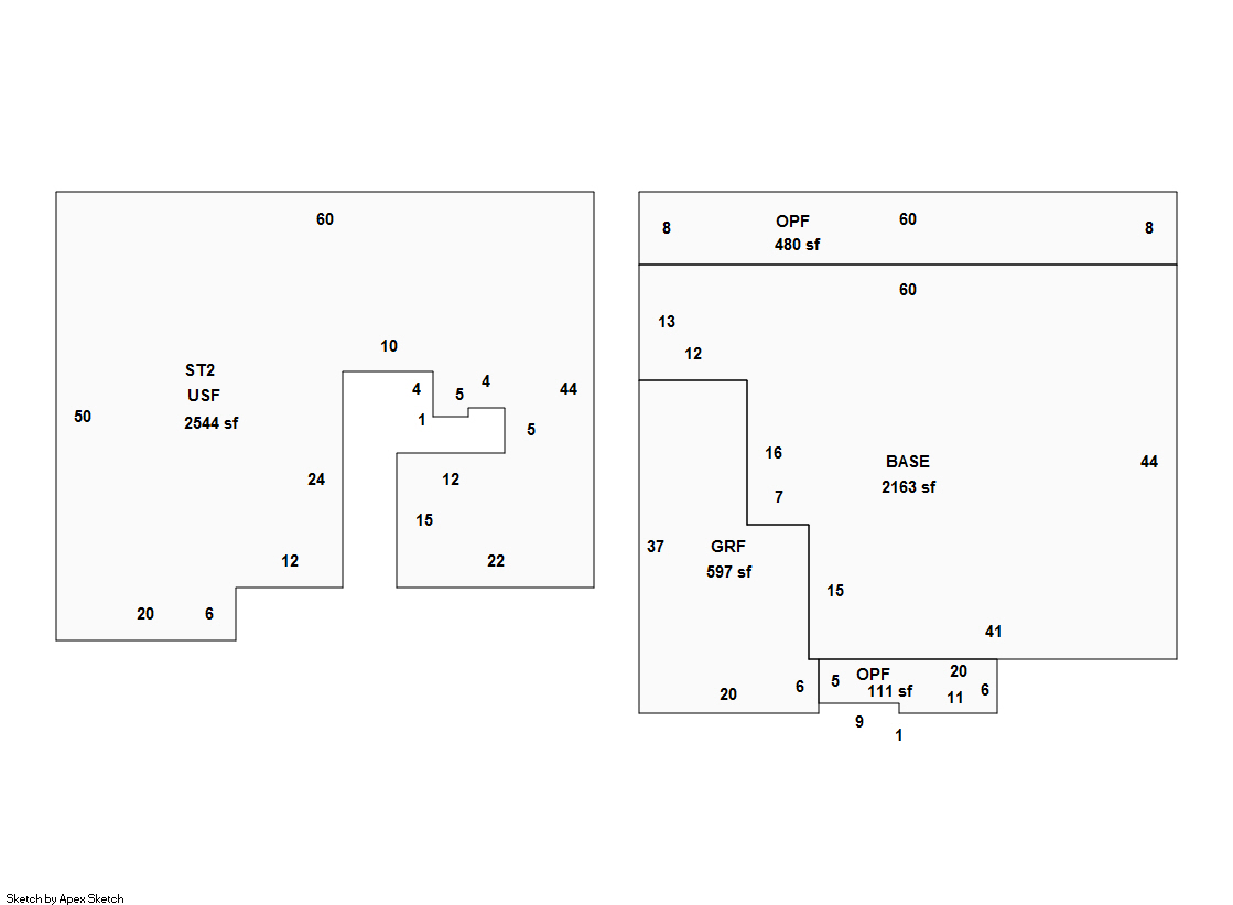
2026 Market $962,810 Assessed $561,392 Taxable $509,981
2025 Tax Bill $8,162.97 Tax Savings with Exemptions $5,958.47

Copyright 2026 © Seminole County Property Appraiser | Privacy Statement | Accessibility/Terms of Use | Translate

Follow us on our socials