Seminole County Property Appraiser


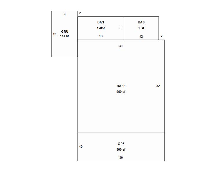
717 W 1ST ST SANFORD, FL 32771
WOODRUFF, ALLEN C; VU, HAN M
2026 Market $197,355 Assessed $88,276 Taxable $88,276
2025 Tax Bill $2,072.80 Tax Savings with Non-Hx Cap $1,516.32

Copyright 2026 © Seminole County Property Appraiser | Privacy Statement | Accessibility/Terms of Use | Translate

Follow us on our socials