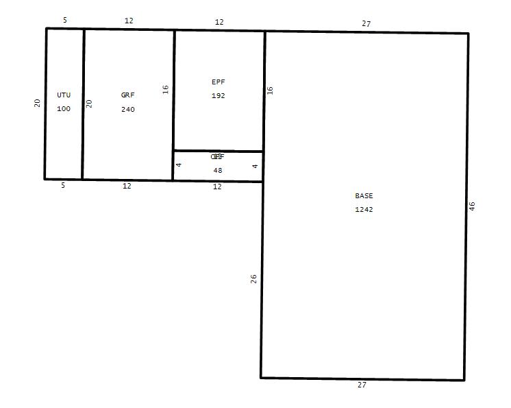
Seminole County Property Appraiser


623 BURKE ST ALTAMONTE SPRINGS, FL 32701
PANCZA, JED
2026 Market $353,090 Assessed $353,090 Taxable $353,090
2025 Tax Bill $6,201.70

Copyright 2026 © Seminole County Property Appraiser | Privacy Statement | Accessibility/Terms of Use | Translate

Follow us on our socials