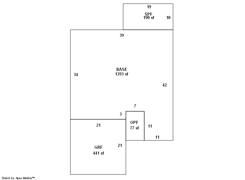
Seminole County Property Appraiser


1107 COVINGTON ST OVIEDO, FL 32765
WALKER, DARRIN; WALKER, CAITLIN
2026 Market $310,653 Assessed $249,388 Taxable $197,977
2025 Tax Bill $3,358.31 Tax Savings with Exemptions $1,874.60

Copyright 2026 © Seminole County Property Appraiser | Privacy Statement | Accessibility/Terms of Use | Translate

Follow us on our socials