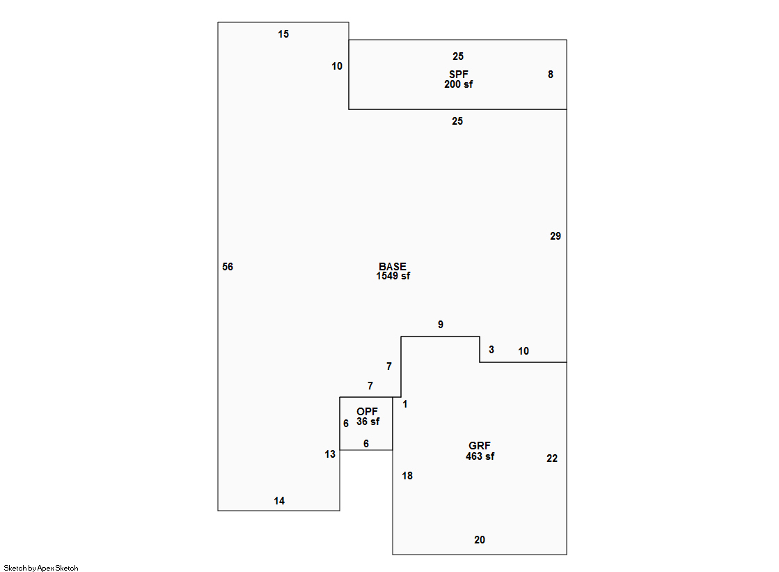
Seminole County Property Appraiser


113 VENETIAN BAY CIR SANFORD, FL 32771
CHAUDHARI, DINESH; CHAUDHARI, SWAPNALI D
2026 Market $363,429 Assessed $363,429 Taxable $363,429
2025 Tax Bill $6,810.53

Copyright 2026 © Seminole County Property Appraiser | Privacy Statement | Accessibility/Terms of Use | Translate

Follow us on our socials