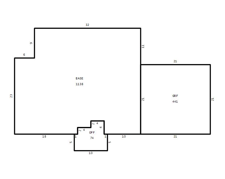
Seminole County Property Appraiser


1049 AMANDA KAY CIR SANFORD, FL 32771
WALTER, ELEANDRO; WALTER, RODE S
2026 Market $256,400 Assessed $256,400 Taxable $204,989
2025 Tax Bill $2,947.05 Tax Savings with Exemptions $558.81

Copyright 2026 © Seminole County Property Appraiser | Privacy Statement | Accessibility/Terms of Use | Translate

Follow us on our socials