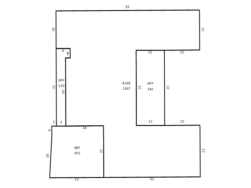
Seminole County Property Appraiser


247 SHADY OAKS CIR LAKE MARY, FL 32746
CRABB, JOSEPH L III; CRABB, THERESA H
2026 Market $601,783 Assessed $326,639 Taxable $275,228
2025 Tax Bill $3,982.67 Tax Savings with Exemptions $4,924.75

Copyright 2026 © Seminole County Property Appraiser | Privacy Statement | Accessibility/Terms of Use | Translate

Follow us on our socials