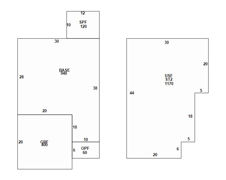
Seminole County Property Appraiser


2345 GRATIA PL CASSELBERRY, FL 32707
SOKOL, SHAWN L; FOURNIER, SHELLEY
2026 Market $413,552 Assessed $269,771 Taxable $218,360
2025 Tax Bill $3,988.56 Tax Savings with Exemptions $3,392.59

Copyright 2026 © Seminole County Property Appraiser | Privacy Statement | Accessibility/Terms of Use | Translate

Follow us on our socials