Seminole County Property Appraiser


540 OLYMPIC VLG # 210 ALTAMONTE SPRINGS, FL 32714
534 SUN VALLEY VILLAGE LLC
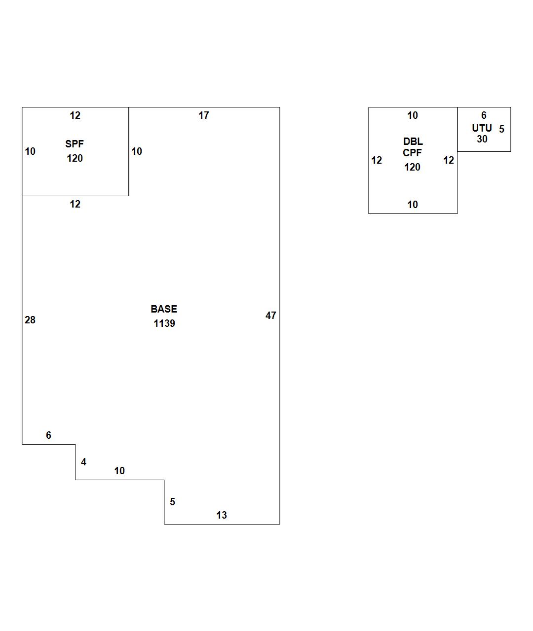
2026 Market $127,306 Assessed $127,306 Taxable $127,306
2025 Tax Bill $2,531.94

Copyright 2026 © Seminole County Property Appraiser | Privacy Statement | Accessibility/Terms of Use | Translate

Follow us on our socials