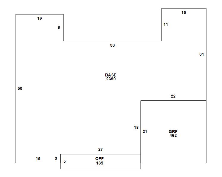
Seminole County Property Appraiser


1428 NORTHERN WAY WINTER SPRINGS, FL 32708
LOUBIER, SCOTT; LOUBIER, JODI
2026 Market $509,290 Assessed $487,036 Taxable $435,625
2025 Tax Bill $6,990.92 Tax Savings with Exemptions $686.09

Copyright 2026 © Seminole County Property Appraiser | Privacy Statement | Accessibility/Terms of Use | Translate

Follow us on our socials