Seminole County Property Appraiser


2846 CANDELA CT APOPKA, FL 32703
BABENKO, ELENA; BABENKO, YURIY
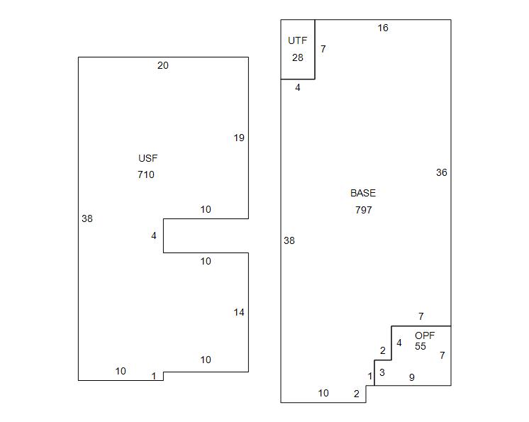
2026 Market $239,802 Assessed $239,802 Taxable $188,391
2025 Tax Bill $2,717.16 Tax Savings with Exemptions $558.81

Copyright 2026 © Seminole County Property Appraiser | Privacy Statement | Accessibility/Terms of Use | Translate

Follow us on our socials