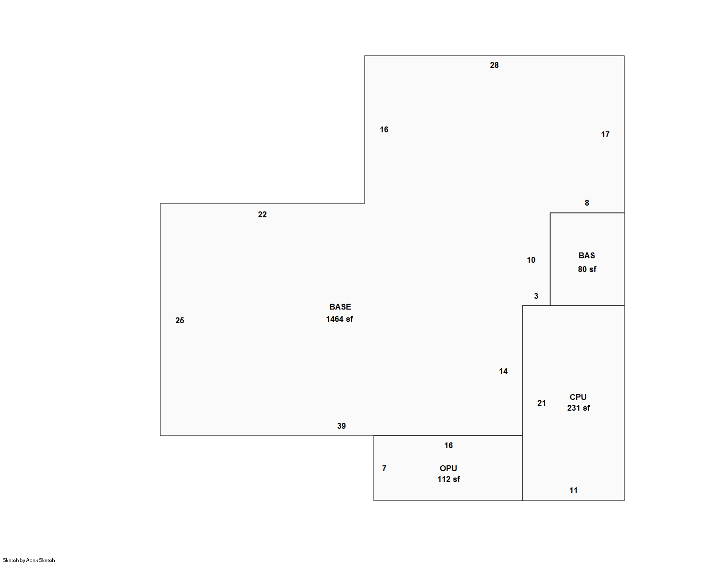
Seminole County Property Appraiser


119 FAIRWAY DR SANFORD, FL 32771
REYES, CLEMENTE
2026 Market $242,237 Assessed $242,237 Taxable $242,237
2025 Tax Bill $3,324.61

Copyright 2026 © Seminole County Property Appraiser | Privacy Statement | Accessibility/Terms of Use | Translate

Follow us on our socials