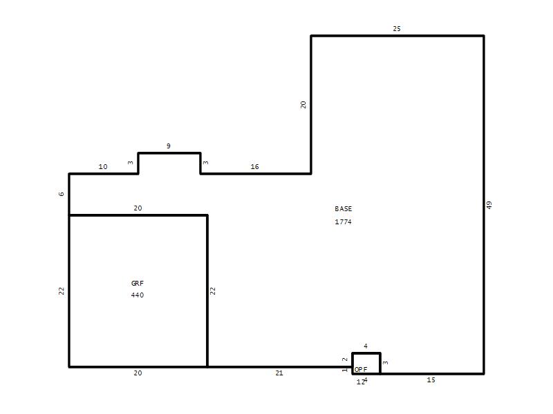
Seminole County Property Appraiser


204 W CUMBERLAND CIR LONGWOOD, FL 32779
CURTIS, KEITH
2026 Market $373,025 Assessed $175,064 Taxable $123,653
2025 Tax Bill $1,772.94 Tax Savings with Exemptions $3,306.33

Copyright 2026 © Seminole County Property Appraiser | Privacy Statement | Accessibility/Terms of Use | Translate

Follow us on our socials