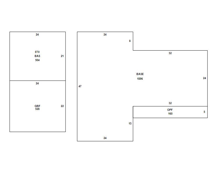
Seminole County Property Appraiser


616 RIVERVIEW AVE ALTAMONTE SPRINGS, FL 32714
CHEPON, ROSE M ENH LIFE EST
2026 Market $359,364 Assessed $169,451 Taxable $68,040
2025 Tax Bill $1,673.86 Tax Savings with Exemptions $4,706.79

Copyright 2026 © Seminole County Property Appraiser | Privacy Statement | Accessibility/Terms of Use | Translate

Follow us on our socials